Ministère
de la Culture
POP | Plateforme ouverte du patrimoineAncienne abbaye bénédictine
Ancienne abbaye bénédictine






Référence de la notice
PA00097710
Nom de la base
Patrimoine architectural (Mérimée)
Producteur
Monuments historiques
Date de création de la notice
14 septembre 1993
Date de dernière modification de la notice
28 novembre 2025
Mentions légales
© Monuments historiques, 1992. Cette notice reprend intégralement les termes de l’arrêté de protection au titre des Monuments historiques. Elle répond à l’obligation réglementaire du ministère de la Culture d’établir la liste générale des immeubles protégés (art. R. 621-80 du Code du patrimoine). Elle est donc opposable et fait foi juridiquement. Aucune copie numérique ou papier ne sera fournie par courrier ni courriel. Le dossier de protection complet et l’arrêté sont consultables uniquement sur place, dans la salle de lecture de la Médiathèque du patrimoine et de la photographie (MPP), à Charenton-le-Pont (Val-de-Marne).
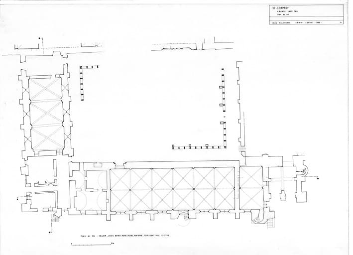
Désignation de l'édifice
Titre courant
Ancienne abbaye bénédictine
Producteur
Monuments historiques
Dénomination de l'édifice
abbaye
Qualité des personnes pour qui l'édifice a été construit ou transformé
de bénédictines
Localisation au moment de la protection ou de l'étude
Localisation
Centre-Val de Loire ; Indre-et-Loire (37) ; Cormery ; rue de l'Abbaye
Précision sur la localisation
Anciennement région de : Centre
Adresse de l'édifice
Abbaye (rue de l')
Références cadastrales
2003 B 224, 225, 244, 247, 249, 251 à 256, 262, 263, 688, 689, 968 ; 2021 B 170, 171, 203, 205, 206, 208, 211, 219, 220, 221, 224, 225, 226, 231, 232, 233, 234, 237, 242, 243, 244, 246, 247, 249, 250, 254, 255, 257, 258, 259, 260, 261, 262, 263, 264, 265, 266, 267, 268, 269, 337, 393, 394, 635, 636, 686, 687, 688, 689, 691, 692, 693, 871, 872, 873, 899, 917, 918, 958, 967, 968, 994, 1030, 1031, 1032, 1033, 1034
Historique de l'édifice
Siècle de campagne principale de construction