Ministère
de la Culture
POP | Plateforme ouverte du patrimoineEglise paroissiale Saint-Apollinaire
Eglise paroissiale Saint-Apollinaire






Référence de la notice
IA00024178
Nom de la base
Patrimoine architectural (Mérimée)
Producteur
Inventaire
Date de création de la notice
1987 AVANT
Date de dernière modification de la notice
21 septembre 2020
Mentions légales
© Inventaire général
Désignation de l'édifice
Titre courant
Eglise paroissiale Saint-Apollinaire
Producteur
Inventaire
Dénomination de l'édifice
église paroissiale
Vocable, pour les édifices cultuels
Saint-Apollinaire
Localisation au moment de la protection ou de l'étude
Localisation
Grand Est ; Haut-Rhin (68) ; Bourbach-le-Bas ; rue de l'Eglise
Précision sur la localisation
Anciennement région de : Alsace
Aire d'étude pour le domaine de l'Inventaire
Thann
Adresse de l'édifice
Eglise (rue de l')
Références cadastrales
1893 1 99
Milieu d'implantation pour le domaine de l'Inventaire
en village
Partie constituante non étudiée
enclos ; calvaire monumental
Historique de l'édifice
Siècle de campagne principale de construction
Année(s) de(s) campagne(s) de construction
1769
Commentaire concernant la datation
porte la date
Auteur de l'édifice
Description historique
Eglise antérieure détruite en 1768 ; date 1769 sur la porte principale, consécration en 1772 ; un projet d'agrandissement réalisé par tisserand en 1868 n'est pas exécuté.
Description de l'édifice
Matériaux du gros-œuvre
grès ; moellon ; revêtement
Matériaux de la couverture
tuile plate
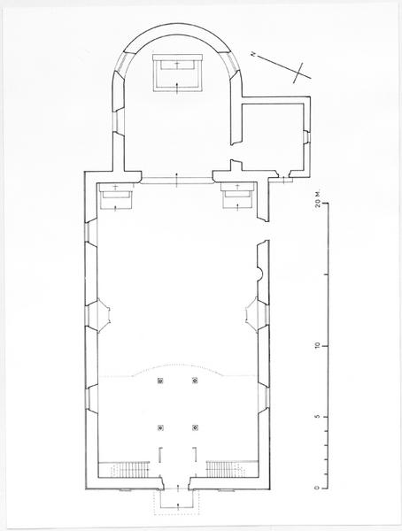
Typologie de plan
plan allongé
Description de l'élévation intérieure
1 vaisseau
Typologie de la couverture
toit à longs pans ; croupe
Emplacement, forme et structure de l'escalier
escalier dans-oeuvre : escalier droit
Date de l'enquête ou du récolement
1968
Statut juridique, intérêt, protection et label
Élément remarquable dans l'édifice
campanile
Observation concernant la protection de l'édifice
Saisie en reprise de l'antériorité. Mise à jour formelle et rechargement en 2009.
Statut juridique
Statut juridique du propriétaire
propriété de la commune
Références documentaires
Cadre de l'étude
Typologie du dossier
dossier avec sous-dossier
Date de rédaction de la notice
1987
Mentions légales
© Inventaire général
Sources complémentaires
Adresse de conservation et consultation du dossier
Région Alsace - Service de l'Inventaire du Patrimoine culturel£Palais du Rhin - 2 Place de la République 67000 Strasbourg - 03.88.15.38.31
Voir aussi
Lien vers le dossier PDF

Référence de la notice
IA00024178
Nom de la base
Patrimoine architectural (Mérimée)
Producteur
Inventaire
Date de création de la notice
1987 AVANT
Date de dernière modification de la notice
21 septembre 2020
Mentions légales
© Inventaire général
Contactez-nousEnvoyer un courriel